Overslaan en naar de inhoud gaan

Dossier nieuwe klaslokalen CPS

wo, 31 mei 2023

Er is een behoefte aan een nieuwbouw voor de vakschool verbonden aan het jongenrendorp Kankala.
Deze nieuwbouw is noodzakelijk omdat de schoolinspectie de huidige gebouwen heeft afgekeurd en dreigt de erkenning te stoppen,

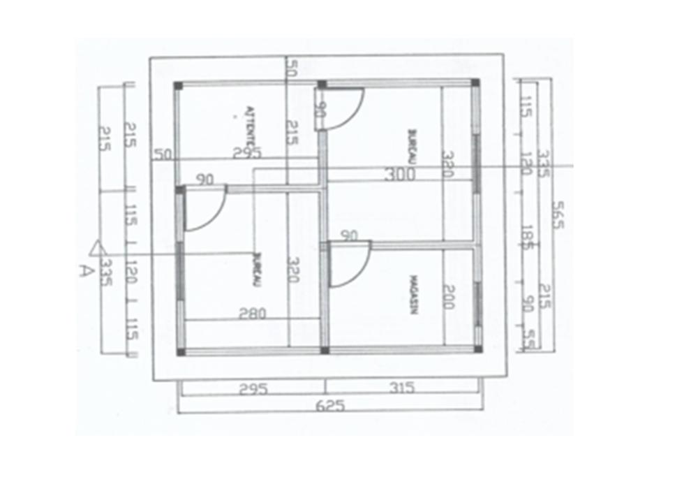
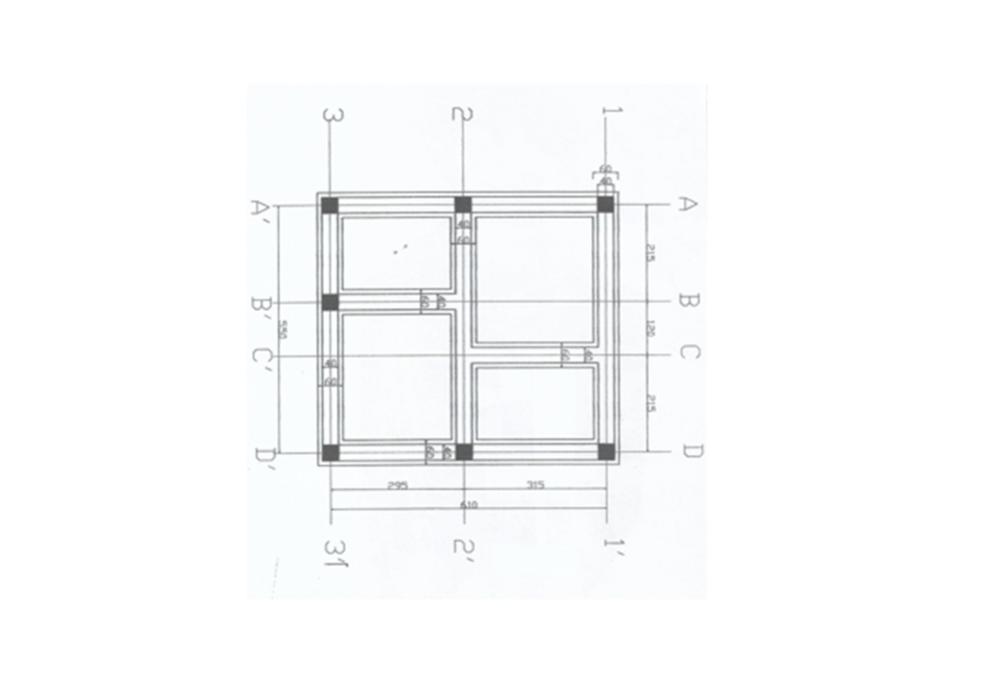
Concreet voor 2023 is fase II voor de bouw van klassencomplex 1 ( met name de voorbereiding van het terrein, de funderingen en het optrekken van de muren. )
In de daaropvolgende jaren de volgende fases